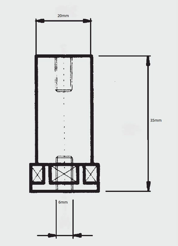
ITALWEBER SPA - ITW0982419 COL DIST CD 419 H35 M6

Melden Sie sich an, um Preise und Verfügbarkeit anzuzeigen
Packung
1 ST
EAN
8024873008835
Artikelnummer
ITW0982419
Herstellernummer
0982419
Hersteller
ITW
Realizzate in resina poliestere colore rosso caricata con fibre di vetro, garantiscono un’elevata resistenza, sia alle sollecitazioni elettriche che a quelle meccaniche.



